CHÍNH CHỦ CẦN NHƯỢNG LẠI CĂN 2PN TẦNG TRUNG (6-9 -RUBY PARK PHÚC LỢI

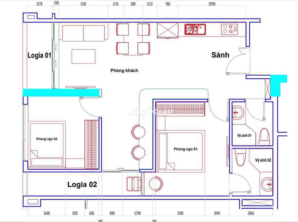
Gia đình mình cần bán lại căn hộ thông tin như sau: * Diện tích: 73,3m2 * Tầng trung từ 6-9 ( không bị đợi thang lâu ) * Căn hộ 2pn 2 logia, có thể thiết kế thành 2n+1 như ảnh * Pháp lý: HDMB đầy đủ * Thời gian bàn giao: cuối năm 2026 * Nội thất: Bàn giao cao cấp từ cđt ( kính full viền, sàn gỗ, vv… ) * Giá bán có gia lộc cho KH thiện chí, và tặng thêm 1 gói thiết kế nội thất ( mình làm KTS TK luôn ) * A/C nào có thiện chí Nhắn mình để biết thêm thông tin chi tiết

Giá: 5.2 tỷ
Diện tích: 73.3 m2
Điện thoại: Đăng nhập để xem

Ngày 06-03-2026 19:16:45   Mã tin: 241254

Tìm kiếm